NL architects has designed 'gershwin (plot 14)' a large residential building intended to form part of amsterdam's zuidas CBD development. the site is ideally situated between the airport and the historic center, establishing a vibrant urban environment capable of hosting a range of national and multinational companies. NL architects proposed plans for the site were cancelled in 2013.

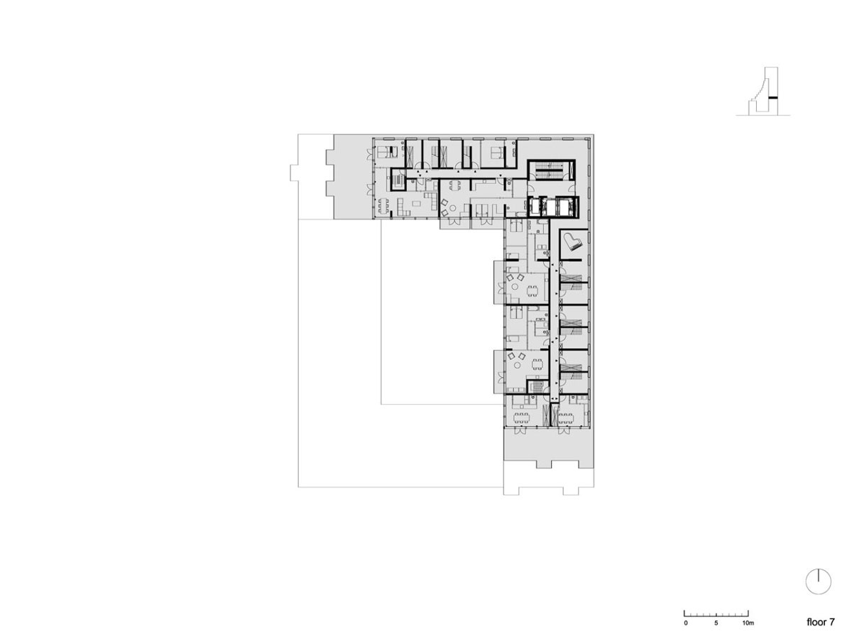
twenty penthouses occupy the upper levels of the tower
combining the characteristics of both a perimeter block and a multi-storey tower, the project retains a high degree of density while simultaneously forging a contemporary european atmosphere through an active and engaging ground level. the gently reclining structure integrates naturally with its surroundings, forming a stepped silhouette which offers expansive views across the dutch capital.

the scheme forms a stepped silhouette which offers expansive views across the dutch capital
the apartments are positioned on a plinth of commercial retail outlets, stepped back as the building climbs to its 77 meter peak. twenty large penthouses are placed at the top of the tower, with each unit featuring flexible internal layouts. the brief insisted that all units were to offer 12.5 square meters external balcony space, ensuring a lively and pleasant residential atmosphere.

each unit offers at least 12.5 square meters of external balcony space

limited by the flight paths of planes, the building is limited to a height of 77 meters

an aerial view highlighting the stepped terraces which define the project

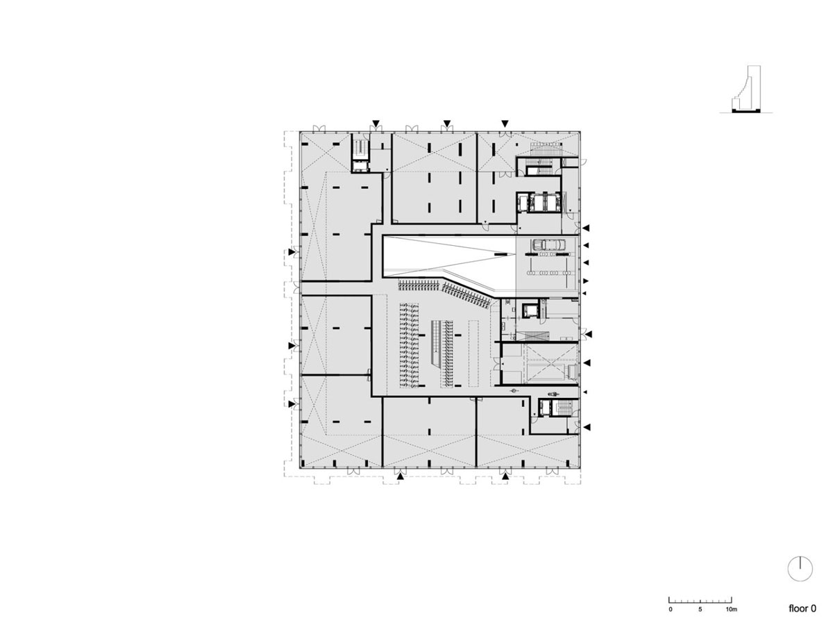
the tower sits on a plinth made up of various commercial outlets

the site provides an active and engaging ground level

the project shown as part of the zuidas development

'gershwin (plot 14)' gently glowing at night
project info:
title: gershwin (plot 14)
location: amsterdam, the netherlands
status: cancelled 2013
client: G & S vastgoed
NL architects: pieter bannenberg, walter van dijk, kamiel klaasse
project architect:
arne van wees
team:
gen yamamoto, gerbrand van oostveen, gert jan machiels, aleksandra
babicka, guillia pastore, milda naujalyte, arminas sadzevicius, michal
krejcik
structural engineers:
van der vorm - van rossum samenwerkende ingenieurs
installations: wichers & dreef
environmental consultant / noise control: cauberg huygen
residential consultant: eefje voogd makelaardij
parking: oever zaaijer / john bosch




















چون در فروشگاه پدرم مشغول به كار هستم تصميم داشتم بعنوان خدمات جنبي به مشتريان و سازندگان ساختماني و مديران پروژههاي عمراني ، خدمات خاصي براي استفاده از نوآوريهاي ساختماني بدهم ( زيرا ما بصورت موروثي جزء فروشندههاي لوازم بهداشتي ساختمان و مصالح هستيم ) ولي اينكار نياز به برنامه و مديريت پيچيده اي داشت كه مرا از انجام وظايف ديگرم در فروشگاه باز ميداشت لذا تلاش كردم با راه اندازي يك گروه اينترنتي به مخاطبين خودم آخرين دستاوردهاي طراحي و انواع ديزاين را ارائه بدهم اما مشكلات فراوان ( خصوصا" نوع اطلاع رساني ) اجازه نميداد ولي در این وبلاگ سعي ميكنيم بعد از ناكامي در ايجاد گروه اينترنتي ( بدليل مشكلات مربوط به خودش ) آخرين نمونه هاي طراحيها و ديزاين جمع آوري شده از فضاي نت را براي شما عزيزان قرار بدهيم تا زحمت وبگردي را برايتان به حداقل برسانم در حال حاضر به تنهايي اقدام ميكنم اما تلاش دارم اينكار را با همكاري بعضي ديگر از دوستان به حد كمال برسانم به هر روي اگر كاستي در انجام اين وظيفه مشاهده نموديد ، ما را از راهنمائيهاي خودتان بي نصيب نگذاريد